
滋賀
Shiga
| 所在地 | 滋賀県高島市マキノ町大沼 | ||
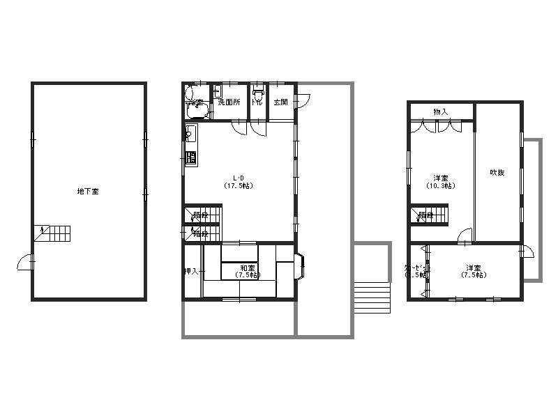
| 建物構造 | 木造 | 築年月日 | 2000年12月 |
| 土地面積 | 公簿331.00㎡(100.12坪) | 建物延床面積 | 154.30㎡ |
| 階建 | 3階建 | 駐車場 | |
| 接道状況 | 西:4.7m 公道 接面120m | 容積率 | 200% |
| 建ぺい率 | 70% | 用途地域 | 無指定 |
| 都市計画 | 非線引区域 | 土地権利 | 所有権 |
| 地目 | 山林 | 現況 | 空家 |
| 取引形態 | 媒介 | 引渡時期 | 相談 |
| 物件登録日 | 2026年 | 更新日 | |
| 設備 | |||
| 備考 | |||
| 近隣の環境 | JR湖西線近江中庄駅徒歩17分、湖西バイパス出入口近く 医療法人マキノ病院まで668m 今津郵便局まで2,117m | ||
